ALL INCLUSIVE I ČIASTOČNE ZREKONŠTRUOVANÝ RD S POZEMKOM VEĽKÉ ÚĽANY
- 157 000€
- 157 000€
Popis
ALL INCLUSIVE REAL s.r.o Vám Exkluzívne ponúka na predaj čiastočne zrekonštruovaný 3 izbový RD so záhradou na peknom pozemku v obci Veľké Úľany (okr. Galanta).
• VLASTNOSTI NEHNUTEĽNOSTI:
Tehlový RD s 3 mi samostatnými izbami, s kuchyňou so špajzou a s kúpeľňou s WC.
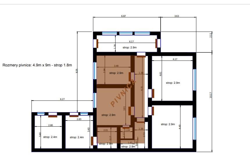
Je čiastočne podpivničený cca 40 m2, kompletne oplotený: zo zadnej strany s barierovym plotom, z prednej s bránou.
K RD prislúcha: predzáhradka a dvor, záhrada o výmere 456 m2, letná kuchyňa a hospodárska budova.
RD sa predáva čiastočne zariadený viď. fotky!
Bezproblémové parkovanie na vlastnom dvore pre 3 vozidlá a ďalšie pred domom na ulici.
• STAV NEHNUTEĽNOSTI
RD bol postavený v 60 ich rokoch. Je vo veľmi zachovalom stave, so suchými stenami – obývateľný.
RD prešiel čiastočnou rekonštrukciou: výmena okien a vchodových dverí na plastové a výmena strechy: črepín a odkvapových žľab.
V lete 2025 sa opravovali praskliny v omietke v izbe.
Je ideálny pre tých, ktorý hľadajú RD na rekonštrukciu s primeranými nákladmi.
Ponúka široké možnosti rekonštrukcie a dispozičnej zmeny, podľa vlastných predstáv a vkusu nového majiteľa.
• POZEMOK:
Jednopodlažný RD je postavený na krásnom, rovinatom pozemku o celkovej výmere 1030 m2 ( záhrada 456 m2)
• ÚŽITKOVÁ PLOCHA:
RD má zastavanú plochu 123 m2 a úžitkovú plochu cca. 100 m2.
+ Letná kuchyňa 25 m2 a hospodárska budova 22 m2.
• DISPOZÍCIA :
– veľká predsieň
– chodba
– 3 priestranné izby,
– kuchyňa so špajzou,
– kúpeľňa s vaňou a s WC
výstup na povalu a pivnicu je cez komu zo zadnej časti
• KÚRENIE:
Kúrenie je riešené s gamatkami na plyn.
• INŽINIERSKE SIETE:
RD je napojený na všetky potrebné IS: elektrika 230/400 V, plyn, studňa, žumpa (10 – 12 m3).
Priamo pred domom sa nachádza prípojka na obecnú kanalizáciu a vodovod.
• TECHNICKÉ VYBAVENIE:
– betónové základy
– murivo: tehla
– 2 komíny – na krb
– strecha: menené črepiny a odkvapové ríny (2012) aj na letnej kuchynke
– plastové okná a vchodové dvere
– interierove žalúzie
– drevené interierové dvere a zárubne
– drevené podlahy
– vysoké stropy
– internet, TV Telecom
• VÝHODY:
– lokalita a dostupnosť
– primeraná cena k stavu
– rekonštrukcia
– možnosť vlastnej realizácie
– pekný, rovinatý pozemok,
– vedľajšie budovy so širokou možnosťou využitia
– pivnica, studňa
– parkovanie pre viac vozidiel
• LOKALITA:
RD sa nachádza v centre obce Veľké Úľany s kompletnou občianskou vybavenosťou: obecný úrad, kultúrne stredisko,
základná škola, materská škola ( slovenská aj maďarská), detské ihrisko, pošta, potraviny, reštaurácie atď.
Obec má vynikajúca dostupnosť do BA s autobusovou regionálnou dopravou.
Je vzdialený len 15 km od okresného mesta Galanta a od Senca a cca 40 km od BA .
• CENA: 157.000,- Eur /celkom
• KONTAKT:
Diana Szabová
+ 421 908 810 912
ALL INCLUSIVE REAL Vám poskytne komplexné a profesionálne služby pri predaji, kúpe alebo prenájme nehnuteľností. V spolupráci s naším hypotekárnym partnerom Vám zaistíme najvýhodnejšie finančné riešenie pre Vašu nehnuteľnosť.
Vďaka našej externej spolupráci s renomovanou právnou kanceláriou, ako aj internému právnemu tímu, Vám zaručujeme vysoko kvalitný a nadštandardný právny servis, ktorý zabezpečí bezproblémový priebeh celého procesu.
Naša kancelária je hrdým členom najväčšieho združenia realitných kancelárií – REALITNÁ ÚNIA, a zaväzuje sa dodržiavať najprísnejšie štandardy a zásady kvality v poskytovaní našich služieb. Okrem toho, naša kancelária je poistená pre prípad zodpovednosti za spôsobené škody, čím garantujeme našim klientom maximálnu bezpečnosť a ochranu.
Nehnuteľnosť bola pripravená s home-staging oddelením a odprezentovaná s profesionálnym fotografom a kameramanom našej spoločnosti. Veľmi radi Vám pomôžeme pri efektívnom a dôstojnom predaji či prenájme aj Vašej nehnuteľnosti. Budeme sa tešiť, keď nás budete nezáväzne kontaktovať.
Text a fotografie sú autorským dielom realitnej kancelárie ALL INCLUSIVE REAL, s.r.o.
Podrobnosti
Aktualizované 16 apríla, 2026 v 12:20 pm-
ID ponuky -179
-
Cena 157 000€
-
Celková plocha 100 m²
-
Plocha pozemku 1030 m²
-
Počet izieb 3
-
Kúpeľňa 1
-
Druh nehnuteľnosti Rodinný dom, Domy a budovy
-
Transakcia predaj
-
Stav čiastočne prerobený
Ďalšie podrobnosti
-
Vlastníctvo osobné
-
Stav čiastočne prerobený
Hypotekárna kalkulačka
-
Výška zálohy
-
Výška hypotéky:
-
Mesačná splátka hypotéky
